본문내용 바로가기
헤더 바로가기
푸터 바로가기
건축상담
02-3411-9911
한글주택
회사소개
사옥소개
연혁
원스톱시스템
찾아오시는 길
상품소개
기획상품
인기상품
포트폴리오
단독·전원주택
수익형주택
커뮤니티
한글소식
한글TV
현장라이브
건축주 스토리
건축 TIP
상담·신청
건축상담
가이드북 신청
협력 업체 신청
홈페이지 정책
개인정보처리방침
이용약관
이메일무단수집거부
한글주택
회사소개
사옥소개
연혁
원스톱시스템
찾아오시는 길
상품소개
기획상품
인기상품
포트폴리오
단독·전원주택
수익형주택
커뮤니티
한글소식
한글TV
현장라이브
건축주 스토리
건축 TIP
상담·신청
건축상담
가이드북 신청
협력 업체 신청
홈페이지 정책
개인정보처리방침
이용약관
이메일무단수집거부
커뮤니티
한글소식
커뮤니티
community
한글소식
전체
한글소식
프로모션
박람회
상세 입니다.
프로모션
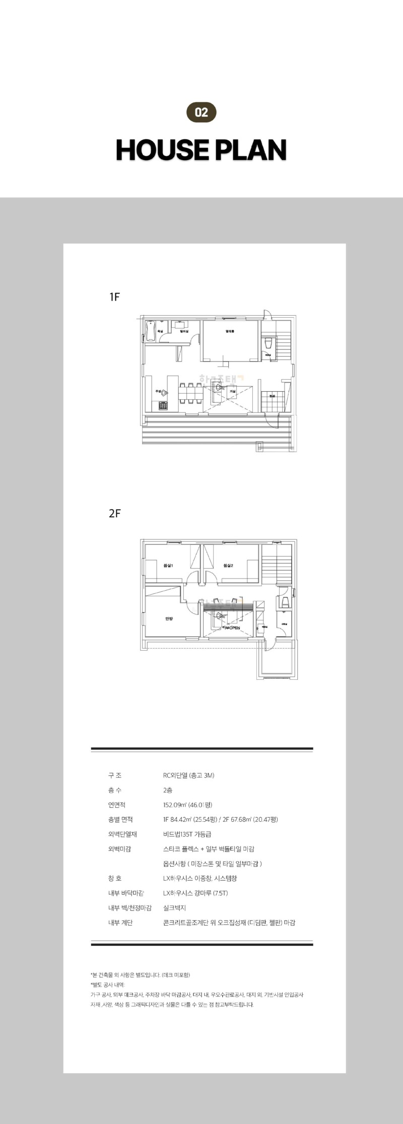
한글46-08 기획상품
2025.09.15
목록
이전
가이드북vol.9 신규출간
다음
한국브랜드만족지수 4년연속 1위
빠른
상담
접수